Detalles del Proyecto.
Secuencia de imágenes del desarrollo del proyecto.
- Cableado Estructurado Categoría 6A y 6
- Cableado Categoría 3 Multipar desde FXB
- Canalizaciones Portacable Cablofil
- Canalizaciones Portacable EMT
- Porforaciones Core Drill
- Back Bone Voz y Datos
- Piso Elevado
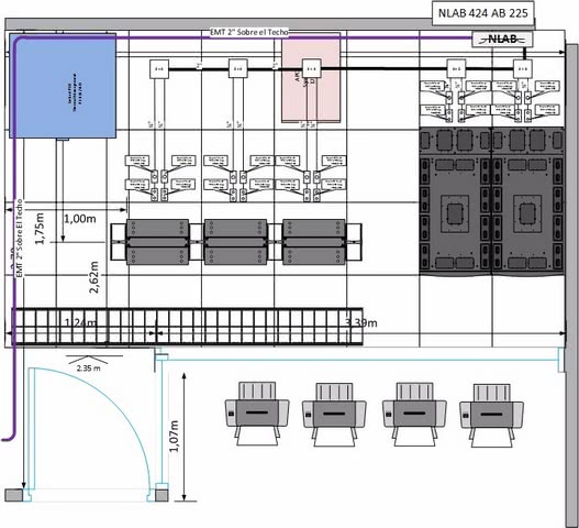
- Diseño Sala Data Center
- Implementación Punto Consolidación
- Conexión Sistema Puesta a TIerra
- Distribución Sistema Puesta TIerra en Portacable Cablofil
- Techos Suspensión Visible par Data Center
- Migración de Equipos Activos y pasivos.
Trabajemos Juntos !
Estamos a sus ordenes
Cualquier consulta sin compromiso






